Современный дом на уникальном лесном участке
ID12130 Продажа
- Шоссе Новорижское шоссе
- Населенный пункт Веледниково
- Расстояние от МКАД 15 км
- Площадь объекта 650 м²
- Площадь участка 18 сот.
Расположение
- Шоссе Новорижское шоссе
- Волоколамское шоссе
- Населенный пункт Веледниково
- Удаленность от МКАД 15 км
Объект
- Площадь дома650 м²
- Кол-во спален3
- Год постройки здания2025
- Отделкапод ключ без мебели
Коммуникации
- Водоснабжениеиндивидуальная скважина
- Газмагистральный
- Канализациясептик
- Электричествода
Дополнительно
- Барбекюда
- Помещение для персоналада
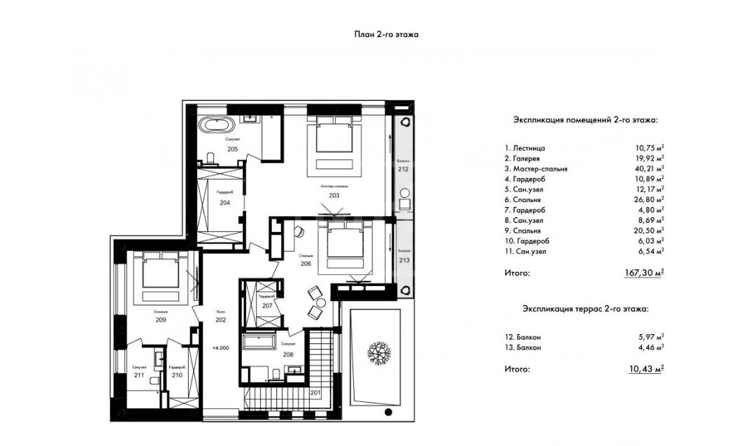
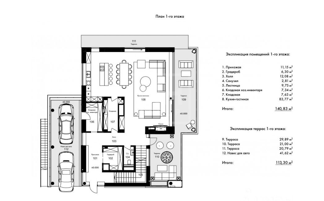
Планировки
Цоколь: Нижний этаж - 2 спальни персонала, кухня, су, постирочная , кладовка. спа-зона с кухней , хамам и сауна со стеклом в пол и видом на участок.
Этаж 1: Прихожая, кухня-столовая-гостинная с камином, с/у, кладовка, гардеробная, выход на террасу
Этаж 2: Мастер-спальня с с/у и гардеробной, 2 спальни с с/у и гардеробными
Описание
Новый современный дом на уникальном рельефном лесном участке на охраняемой территории в районе поселка Павлово на Новорижском шоссе. Фасад комбинированный с элементами керамогранита, дерева и штукатурки. Отделка в доме выполнена из качественных дорогостоящих материалов в светлых и сдержанных тонах. Панорамное остекление, высокие потолки делают его невероятно светлым. Из основных помещений предусмотрены выходы на террасы, с которых открывается потрясающий вид на участок и естественный природный ландшафт. Планировкой предусмотрено 3 спальни со своими с/у и гардеробными, просторная зона кухни-столовой-гостиной, спа-зона с комнатой отдыха, сауной, душевой и с/у, помещения для персонала с отдельным входом, навес для автомобилей. Редкий по своей естественной красоте участок правильной формы с перепадом высот и вековыми соснами. Кроме основного дома на территории расположена отапливаемая большая беседка с возможностью размещения зоны барбекю.
13 км
от МКАД
от МКАД
890.2 м²
S объекта
S объекта
25 сот.
S участка
S участка
305 000 000
18 км
от МКАД
от МКАД
366 м²
S объекта
S объекта
26 сот.
S участка
S участка
188 000 000
15 км
от МКАД
от МКАД
550 м²
S объекта
S объекта
24 сот.
S участка
S участка
205 345 056
15 км
от МКАД
от МКАД
550 м²
S объекта
S объекта
24 сот.
S участка
S участка
205 345 056
23 км
от МКАД
от МКАД
полевой
47 сот.
S участка
S участка
117 500 000
9 км
от МКАД
от МКАД
850 м²
S объекта
S объекта
27 сот.
S участка
S участка
722 510 381
20 км
от МКАД
от МКАД
у воды
30.88 сот.
S участка
S участка
420 000 000
5 км
от МКАД
от МКАД
270 м²
S объекта
S объекта
4 сот.
S участка
S участка
95 000 000
1 км
от МКАД
от МКАД
400 м²
S объекта
S объекта
7 сот.
S участка
S участка
225 000 000
20 км
от МКАД
от МКАД
полевой
37 сот.
S участка
S участка
198 000 000
23 км
от МКАД
от МКАД
800 м²
S объекта
S объекта
25 сот.
S участка
S участка
300 000 000
24 км
от МКАД
от МКАД
прилесной
17 сот.
S участка
S участка
63 000 000
20 км
от МКАД
от МКАД
410 м²
S объекта
S объекта
50 сот.
S участка
S участка
175 000 000
27 км
от МКАД
от МКАД
570 м²
S объекта
S объекта
18 сот.
S участка
S участка
128 000 000
20 км
от МКАД
от МКАД
у воды
114.9 сот.
S участка
S участка
967 072 540
22 км
от МКАД
от МКАД
1100 м²
S объекта
S объекта
48 сот.
S участка
S участка
232 000 000
5 км
от МКАД
от МКАД
862 м²
S объекта
S объекта
38 сот.
S участка
S участка
650 000 000
23 км
от МКАД
от МКАД
-
120.6 сот.
S участка
S участка
301 500 000
5 км
от МКАД
от МКАД
942 м²
S объекта
S объекта
38 сот.
S участка
S участка
1 390 000 000
15 км
от МКАД
от МКАД
прилесной
42 сот.
S участка
S участка
320 000 000
14 км
от МКАД
от МКАД
560 м²
S объекта
S объекта
25 сот.
S участка
S участка
144 502 076
7 км
от МКАД
от МКАД
646 м²
S объекта
S объекта
11 сот.
S участка
S участка
550 000 000
5 км
от МКАД
от МКАД
1015 м²
S объекта
S объекта
56 сот.
S участка
S участка
1 590 000 000
24 км
от МКАД
от МКАД
415 м²
S объекта
S объекта
4 сот.
S участка
S участка
49 000 000
24 км
от МКАД
от МКАД
550 м²
S объекта
S объекта
30 сот.
S участка
S участка
289 004 153
11 км
от МКАД
от МКАД
415 м²
S объекта
S объекта
12 сот.
S участка
S участка
360 000 000
15 км
от МКАД
от МКАД
1000 м²
S объекта
S объекта
40 сот.
S участка
S участка
420 000 000