Надёжный дом в КП "Сареево-39"
ID11597 Продажа
- Шоссе Рублёво-Успенское шоссе
- Населенный пункт Малое Сареево
- Поселок КП Сареево-39
- Расстояние от МКАД 14 км
- Площадь объекта 560 м²
- Площадь участка 25 сот.
Расположение
- Шоссе Рублёво-Успенское шоссе
- Северный объезд Одинцово (платная дорога)
- Красногорское шоссе
- Населенный пункт Малое Сареево
- Поселок КП Сареево-39
- Удаленность от МКАД 14 км
Объект
- Площадь дома560 м²
- Кол-во спален5
- Отделкачерновая отделка
Коммуникации
- Водоснабжениецентральное
- Газмагистральный
- Канализациясептик
- Электричествода
Дополнительно
- Бассейнда
- Баняда
- Доп. строенияда
- Барбекюда
Планировки
Мансарда: помещение свободного назначения, позволяющее обустроить две спальни или пространство для отдыха.
Цоколь: бассейн, соляная комната, сауна, хаммам, массажная, санузел, душевая, выход на террасу, котельная.
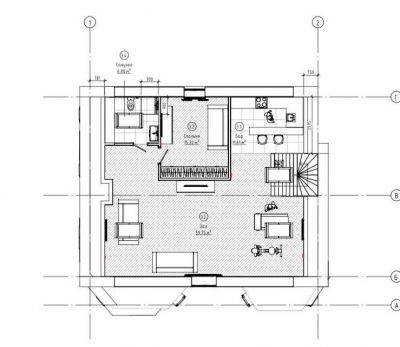
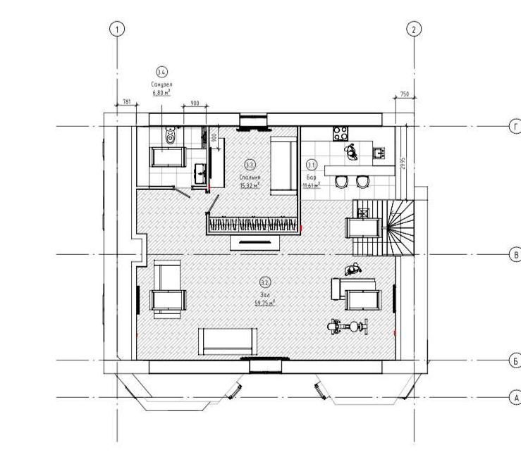
Этаж 1: прихожая, кухня-столовая, гостиная с камином, санузел, спальня, кабинет (или спальня).
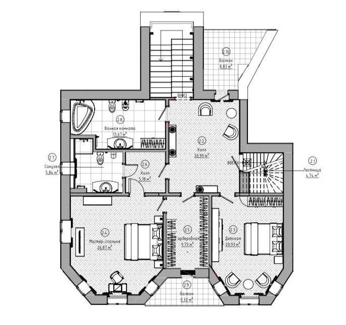
Этаж 2: мастер - спальня с санузлом, гардеробной и балконом, спальня, санузел, балкон.
Описание
Дом под отделку в классическом стиле на великолепном лесном участке в охраняемом коттеджном посёлке "Сареево 39" (Малое Сареево). Дом кирпичный, с надежным конструктивом - толщина стен 60 см., фальцевая кровля, выполнена гидроизоляция фундамента и дренаж. Участок с лесными деревьями, преимущественно хвойных пород и небольшим перепадом высот, что позволило сделать выход на улицу из СПА - зоны в цокольном этаже. Благодаря уникальному рельефу участка возможно реализовать разнообразные интересные идеи оформления ландшафта.В доме функциональная планировка ( есть интерьерный проект, оформленный в стиле нео -классика ): на первом этаже предусмотрены гостевая спальня и кабинет, каминный зал с высотой потолка около пяти метров, кухня-столовая. На втором этаже мастер - спальня с гардеробной, санузлом и балконом, детская спальня и санузел. На мансарде возможно обустроить две спальни или спальню и пространство для отдыха. СПА - зона расположена на цокольном этаже, по проекту здесь должны также находиться бассейн, соляная комната, сауна, хаммам, санузел, душевая и массажный кабинет. Выход на участок из цокольного этажа, позволяет комфортно отдыхать после проведенных СПА - процедур. Продавец готов обсуждать профессиональное и качественно доведение объекта до готовности "под ключ".
Локация поселка позволяет за 20-30 минут доехать до Москва-Сити по проспекту Багратиона. Вся необходимая инфраструктура находится в нескольких минутах езды на автомобиле. Тишина, удобная транспортная доступность, респектабельное окружение - всё это выгодно дополняет приобретение надежного и качественного дома ,подходящего как для постоянного проживания, так и для полноценного отдыха на природе!
15 км
от МКАД
от МКАД
419 м²
S объекта
S объекта
9.6 сот.
S участка
S участка
180 000 000
1 км
от МКАД
от МКАД
1830 м²
S объекта
S объекта
15 сот.
S участка
S участка
627 380 686
9 км
от МКАД
от МКАД
750 м²
S объекта
S объекта
8 сот.
S участка
S участка
296 609 525
9 км
от МКАД
от МКАД
220 м²
S объекта
S объекта
8 сот.
S участка
S участка
132 000 000
13 км
от МКАД
от МКАД
460 м²
S объекта
S объекта
23 сот.
S участка
S участка
110 000 000
9 км
от МКАД
от МКАД
1650 м²
S объекта
S объекта
70 сот.
S участка
S участка
896 258 122
Квартира с огромной террасой в ЖК Остров Фантазий
ID5028 Продажа
Рублёво-Успенское шоссе, Западный, Крылатское
17 км
от МКАД
от МКАД
245 м²
S объекта
S объекта
Под ключ
с мебелью
с мебелью
230 000 000
24 км
от МКАД
от МКАД
1050 м²
S объекта
S объекта
26 сот.
S участка
S участка
520 968 012
4 км
от МКАД
от МКАД
343 м²
S объекта
S объекта
Под ключ
с мебелью
с мебелью
228 161 173
23 км
от МКАД
от МКАД
-
84 сот.
S участка
S участка
135 000 000
8 км
от МКАД
от МКАД
-
20.64 сот.
S участка
S участка
105 000 000
15 км
от МКАД
от МКАД
1200 м²
S объекта
S объекта
50 сот.
S участка
S участка
357 452 504
22 км
от МКАД
от МКАД
садовый
50 сот.
S участка
S участка
60 000 000
24 км
от МКАД
от МКАД
415 м²
S объекта
S объекта
4 сот.
S участка
S участка
49 000 000
15 км
от МКАД
от МКАД
1000 м²
S объекта
S объекта
40 сот.
S участка
S участка
420 000 000
11 км
от МКАД
от МКАД
415 м²
S объекта
S объекта
12 сот.
S участка
S участка
360 000 000
23 км
от МКАД
от МКАД
-
120.6 сот.
S участка
S участка
301 500 000
5 км
от МКАД
от МКАД
862 м²
S объекта
S объекта
38 сот.
S участка
S участка
650 000 000
24 км
от МКАД
от МКАД
550 м²
S объекта
S объекта
30 сот.
S участка
S участка
289 004 153
5 км
от МКАД
от МКАД
1015 м²
S объекта
S объекта
56 сот.
S участка
S участка
1 590 000 000
7 км
от МКАД
от МКАД
646 м²
S объекта
S объекта
11 сот.
S участка
S участка
550 000 000
15 км
от МКАД
от МКАД
прилесной
42 сот.
S участка
S участка
320 000 000
24 км
от МКАД
от МКАД
152 м²
S объекта
S объекта
7 сот.
S участка
S участка
38 000 000
5 км
от МКАД
от МКАД
942 м²
S объекта
S объекта
38 сот.
S участка
S участка
1 390 000 000
22 км
от МКАД
от МКАД
1100 м²
S объекта
S объекта
48 сот.
S участка
S участка
232 000 000